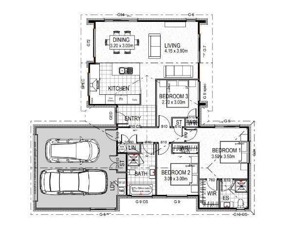
This quality home in Broadfield Grange offers three double bedrooms, including a master suite with a walk‑in wardrobe and ensuite, complemented by a spacious family bathroom. The modern kitchen features a stone benchtop, while fitted wardrobes and a heat pump add everyday comfort.
A double garage with internal access and a dedicated laundry enhances practicality. Finished with two striking feature gables, Linear secondary cladding, and a boundary fence, the home sits on a titled section ready for your build. A well‑designed, low‑maintenance option in one of Rolleston’s most sought‑after new subdivisions.
Contact your local Sales Consultants