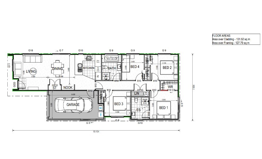
This modern home delivers a smart and functional layout, featuring four double bedrooms, including a main bedroom with its own ensuite and walk‑in wardrobe. The open‑plan living and dining space creates a comfortable hub for everyday living, supported by a study nook and contemporary kitchen fitted with quality appliances. A heat pump, LED lighting, and H1 energy efficiency compliance provide reliable comfort throughout the seasons, while single internal‑access garaging adds practical convenience. The exterior is finished with a durable mix of Linea® oblique and brick, complemented by a sleek monopitch roof design.
Situated in the Belfast subdivision, this home enjoys a location that balances convenience with lifestyle. Belfast is a popular area known for its proximity to local shops, schools, and parks, along with easy access to key transport routes connecting to Christchurch and North Canterbury. It’s a sought‑after choice for families, professionals, and buyers wanting modern living in an established and growing community.
This house and land package is offered on a fixed price contract, with titles expected in August 2026, and is backed by a 10‑Year Residential Builders Guarantee - providing peace of mind and a clear path to securing a quality new home in Belfast.
Please see our Rental Assessment of $650 - $680 per week from Harcourts Holmwood.