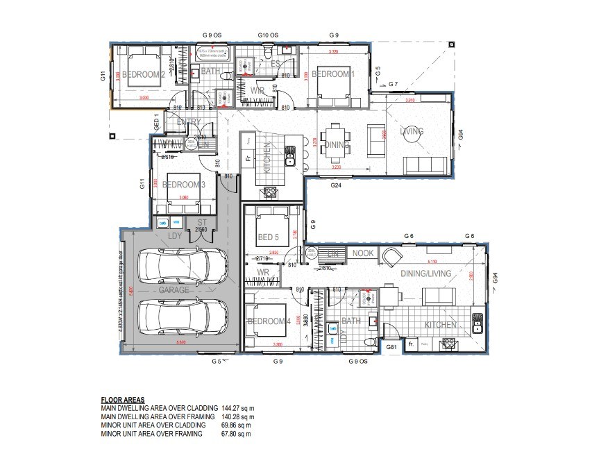
This well‑designed home‑and‑income turnkey property features a 144sqm main dwelling with three double bedrooms, including a master with ensuite and walk‑in wardrobe, a modern stone‑benchtop kitchen, family bathroom, and double garage with internal access. Quality touches such as curtains, blinds, soft landscaping, internal gates, cedar gables, and separate power and internet meters add comfort and convenience.
The 69sqm minor dwelling provides excellent income potential with two double bedrooms, a modern kitchen, combined bathroom‑laundry, study nook, separate entry, and its own utilities. This property is fully fixed‑price build with council development costs included and has a guaranteed move‑in date.
Main Dwelling (144sqm):
Three double bedrooms
Master with walk-in wardrobe and ensuite
Family bathroom
Modern kitchen with stone bench top
Double garage with laundry and internal access
50 sqm driveway and 30 sqm patio
Separate internet and electric meter
Soft Landscaping and internal gates.
Feature gables with Cedar as secondary cladding
Development cost of the council
TC 1 Rib raft foundation
Curtains and blinds
Turnkey
Fully fixed price and guaranteed move in date
Minor Dwelling (69sqm):
Two double bedrooms
One bathroom includes laundry
Modern kitchen with stone bench top
Study nook
Separate internet and electric meter
Separate entry
Curtains and blinds
Contact your local Sales Consultants