Hampton Grove in Prebbleton is the perfect setting for our newest show home, which is now available for sale as an investment opportunity.
As with all Generation Homes show homes, this property includes a range of premium upgrades and will be finished to an exceptional standard - ideal for investors planning to move in at the end of the lease term or on‑sell with confidence.
A show home also provides the ultimate peace of mind, offering reliable tenants (Generation Homes) and a guaranteed return throughout the lease period. With a guaranteed rental yield of $1,100 per week, this turnkey show home presents an outstanding investment opportunity in one of Selwyn’s most desirable locations.
Your investment is delivered as a fully completed turnkey package with no hidden costs - fixed price, guaranteed.
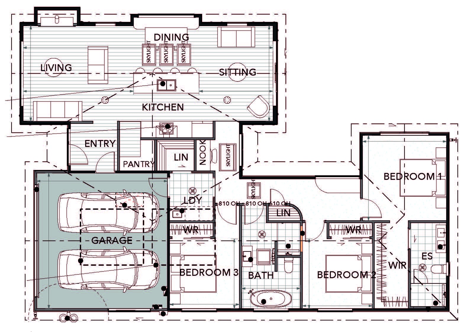
Inside, the home features three double bedrooms, a modern kitchen with a walk‑in pantry and stone benchtop, and spacious open‑plan living that incorporates dining, sitting, and lounge areas. Practical additions such as a computer nook, large linen cupboard, separate laundry, and tiled bathroom and ensuite ensure everyday convenience.
Architectural details include a 30‑degree roof pitch, attic storage, Axon panel and board‑and‑batten cladding, a gas fireplace, a built‑in bench seat, and a carpeted double garage with internal access - bringing together comfort, style, and functionality.
Talk to our team today for more information.
Ensuite (ES):
Main Bathroom:
Kitchen & Pantry:
Laundry:
Living Area:
Joinery & Built-ins:
Heating & Comfort:
Cladding:
Lighting & Electrical:
Exterior & Landscaping:
Additional Inclusions:
Contact your local Sales Consultants