Located on the popular Kennedys Bush Road in the desirable Kennedys Green subdivision in Halswell, Christchurch, this brand-new three-bedroom home offers a smart and versatile layout perfect for couples looking to share with flatmates, young families starting out, or investors seeking a turnkey rental opportunity.
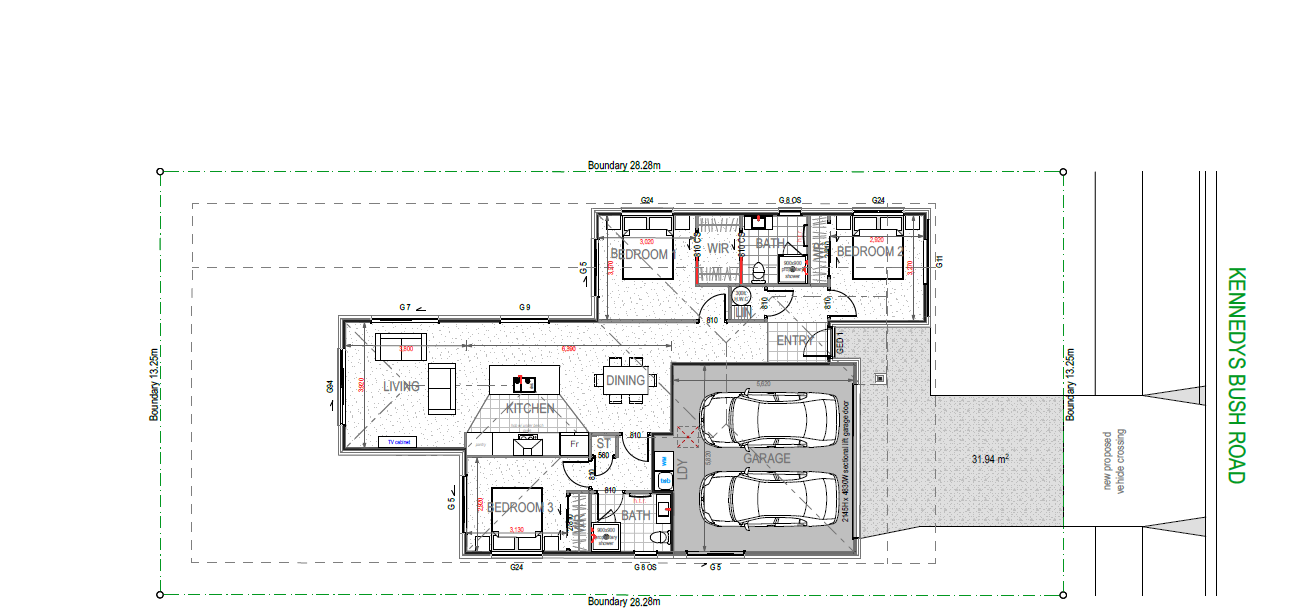
With a total floor area of 147.37 sqm and a section size of 374 sqm, this thoughtfully designed home maximises space and functionality. The open-plan living and dining area flows seamlessly to a 20sqm patio, creating an ideal indoor-outdoor lifestyle for entertaining or relaxing. The kitchen is a standout feature, complete with a stone benchtop that adds a touch of luxury and durability to everyday living.
The home includes three well-proportioned bedrooms and two modern bathrooms, offering comfort and privacy for all occupants. Whether you're a couple wanting extra rooms for guests or flatmates, or a young family needing space to grow, this layout is designed to adapt to your lifestyle.
The exterior showcases a stylish combination of brick and Linea cladding, paired with a striking gable roofline that enhances the home’s street appeal. A brick letterbox, vehicle crossing, and soft landscaping are all included, ensuring the property is move-in ready with no additional work required.
Parking is well catered for with a double garage and a 35 sqm driveway, providing ample space for vehicles, storage, or weekend projects. Inside, blinds and curtains are already installed throughout the home, offering privacy and comfort from day one.
For investors, this property is a standout. All homes in this development are Tenant Ready and Healthy Homes compliant, meaning you can rent out the property immediately with confidence. With a guaranteed move-in date, you’ll have peace of mind knowing your investment is secure and ready to generate returns as soon as you receive the keys.
EXCITING LIMITED TIME OFFER:
Sign up before the 17th of December 2025 and receive a FREE Solar Package valued at $10,000! This bonus adds long-term energy savings and sustainability to your new home, making it even more attractive for both homeowners and tenants.
This is a fully fixed-price build, so there are no hidden costs or surprises - just a straightforward, stress-free path to homeownership or investment. Whether you're stepping onto the property ladder or expanding your portfolio, this home offers unbeatable value in one of Christchurch’s most desirable new communities.
Photos are for idea & styling purposes only. They are examples of previous builds by Generation Homes.
VISIT US:
Kennedys Green, Halswell Show Home
Address: 56 Whites Tramway Road, Halswell
Opening Hours: Wednesday to Sunday 10am - 4pm or by appointment
Kennedys Green, Halswell Show Home | Canterbury (generation.co.nz)
Contact your local Sales Consultants