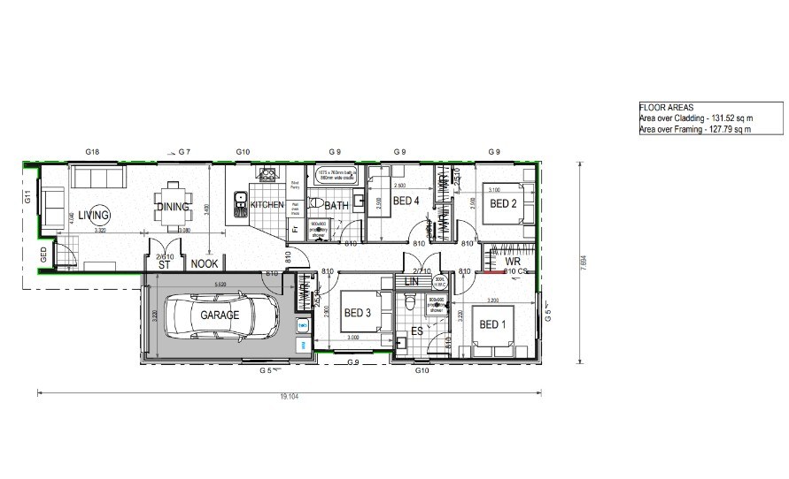
This contemporary home has been carefully planned to suit modern lifestyles, featuring four double bedrooms including a main bedroom with its own ensuite and walk‑in wardrobe. Everyday life centres around the spacious open‑plan living and dining zone, supported by a stylish, well‑appointed kitchen with appliances. Comfort and efficiency are prioritised with a heat pump, energy‑efficient LED lighting, and full H1 compliance, while internal access single garaging adds everyday convenience. The exterior showcases a modern aesthetic with a combination of Linea® oblique and brick cladding, finished with a sharp mono‑pitch roof design.
Set within Streamside at Ravenswood, this home is part of a well‑established neighbourhood designed to make the most of its natural surrounds. Residents enjoy a relaxed atmosphere with landscaped spaces and walking paths, while still benefiting from easy access to local services, main routes, and nearby town centres. Streamside continues to grow in popularity as a desirable North Canterbury address for a wide range of buyers.
This titled house and land package is offered on a fixed price contract, providing clarity and certainty from the outset, and is supported by a 10‑Year Residential Builders Guarantee for long‑term peace of mind. It presents a smart opportunity to secure a quality new home in a sought‑after location.
Please see our Rental Assessment of $650 - $680 per week from Harcourts Holmwood.