Description

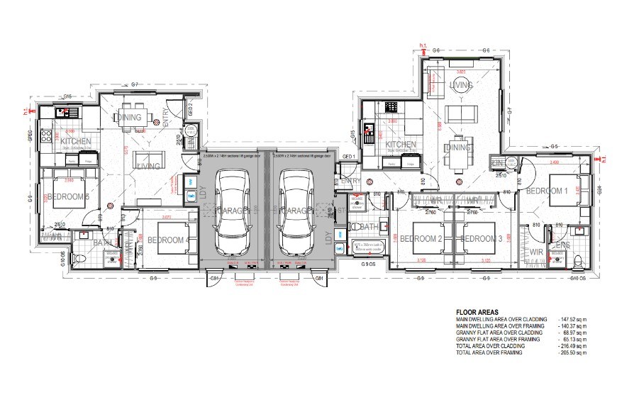
This dual‑dwelling property offers a complete home‑and‑income solution with two fully self‑contained residences, each finished to a high standard. The main dwelling features three double bedrooms, two bathrooms, a modern stone‑benchtop kitchen, a heat pump, and a single garage with laundry and internal access. Practical additions include a 110m² driveway, 30m² patio, gas cooking and hot water, separate power and internet connections, and all development costs included.

The minor dwelling provides two double bedrooms, one bathroom, a modern stone‑benchtop kitchen, a heat pump, and its own single garage with internal access and laundry. It also includes a private entry with digital keypad, separate utilities, gas cooking and hot water, and development costs covered. Together, these homes deliver flexible living options ideal for extended family, rental income, or a smart long‑term investment.

Home features

Main Dwelling

  • Three double bedrooms
  • Two bathrooms
  • Modern kitchen with stone bench top
  • Single garage with laundry and internal access
  • Heat pump
  • Driveway 110m2 and patio 30m2
  • Separate electric meter and internet connection
  • Gas cooking and water heating
  • Development cost is included

Minor Dwelling

  • Two double bedrooms
  • One bathroom
  • Modern kitchen with stone bench top
  • Single garage with laundry internal access
  • Heat pump
  • Separate electric meter and internet connection
  • Separate entry for minor unit with digital pad
  • Gas cooking and water heating
  • Development cost is included

Floor plan

 Generation Homes Stylish Dual Living – Ideal for Families or Investors Build Only Dual Dwelling