Stunning Matipo Avenue, on the cusp of Pomare, Pukehangi, Matipo Heights and Springfield - with access to Rotorua's best schools, daycares, Golf Clubs, Sports venues, parks and walks.
Close to the Redwoods, mountain biking tracks, multiple lakes, walks, shopping centers, supermarkets, and 5km to the city center and the East coast beaches are only 40 minutes away!
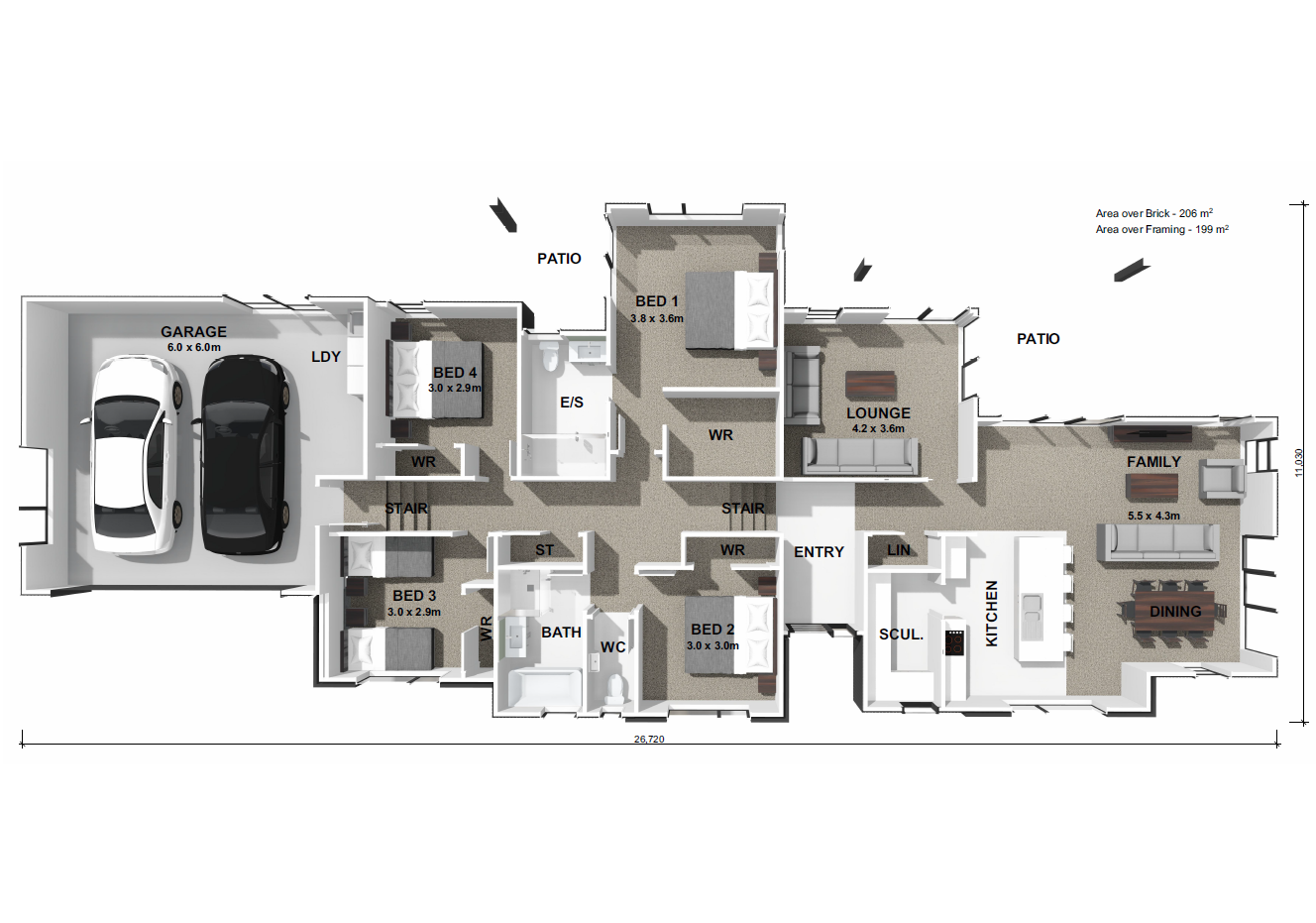
We are ready to build this gem...or you still have time to make some changes...
Be part of the design process from the get-go.
Choose your features, colours, finishes and fixtures to get the home that suits your individual needs.
With Generation Homes you can know what you are paying upfront, plus you will be provided with a guaranteed move-in date.
Building your new home should be a happy and exciting time and we are committed to delivering you the best build experience. Let us do the heavy lifting!
Call now to discuss, view or adjust Or call in to our Show Home Office at 1 Towhai Cres, Wharenui Rise, Owhata, Rotorua - any weekdays or call to arrange a viewing on weekends. We welcome weekend viewings!! !
Rachel Lester 027 261 0621 or rachel.lester@generation.co.nz.
USE OUR PLANS AS THEY ARE FOR THIS FIXED PRICE OFFER - OR MAKE THEM YOUR OWN WITH YOUR FAMILY'S ADJUSTMENTS. YOU CAN MAKE OUR PLANS SMALLER OR LARGER FOR THIS LOT - OR ELSE START AGAIN..
*Need help with finance, no worries! Talk to us today and we can put you in touch with the right people and banks to provide you with a quick turnaround
Your Local Sales Consultants