Welcome to Lot 424 in Aurora. A beautiful new community in Peacocke, Hamilton - designed with walkways, green spaces, and easy connections via the new Te Ara Pekapeka Bridge to the wider city. This modern new build offers relaxed, low maintenance living and has been carefully planned for comfort, function, and style.
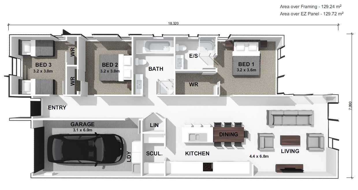
Step inside and you’ll find a light filled open plan living space that forms the heart of the home. The modern kitchen features a sleek island bench and a scullery, giving you valuable extra storage and prep space. From the dining area, large windows and sliding doors create a natural flow outside, perfect for relaxed evenings, casual coffees in the sun, or hosting friends with ease.
The master suite sits privately at the end of the home, complete with a walk-in wardrobe and ensuite. Two additional bedrooms are located in their own peaceful wing, making this layout ideal for families, guests, or working from home. A full bathroom, internal laundry, and single internal-access garage complete the home, offering convenient, low maintenance living.
Outside, the landscaping, fencing, driveway, and finishing touches are all taken care of - simply move in and enjoy!
Key Features:
Modern roofline and hardwearing, low maintenance claddings
Generous open plan living with indoor-outdoor flow
Master suite with ensuite and walk-in robe
Custom designed kitchen with quality appliances and scullery
Landscaped grounds with barked gardens and hydroseeded lawns
Internal access garage with automatic door
Fencing, driveway, patios, mailbox and clothesline included
Fixed price contract
10 year residential build guarantee
Whether you’re a first-home buyer, investor, a growing family, or looking to downsize, this home presents an incredible opportunity to secure a brand new build in one of Hamilton’s most desirable developments.
Contact Felicity today for an information pack or to arrange a site visit:
p. 027 394 5667 | e. felicity.joslin@generation.co.nz
Note: Artist impression and plans provided are indicative only and subject to final specifications, colour selections and developer approval.
Your Local Sales Consultants